اگر شما هم از آن دسته از افرادی هستید که به دنبال بازسازی دکوراسیون آرایشگاه قدیمی خود هستند این بخش کاملا مرتبط با شماست !!! در این پست قصد معرفی دکوراسیون آرایشگاه زنانه شکرنیا در تهران ( منطقه سعادت آباد ) را داریم . یکی از دلایلی که موجب شد طراحی سالن زیبایی شکرنیا مورد توجه گروه معماری خانه طرح قرآر گیرد بحث خلاقیت در استفاده از هارمونی رنگ ها بود .
مشخصات پروژه :
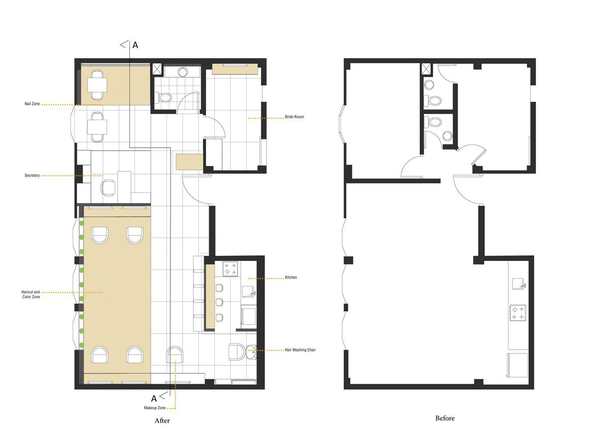
نام پروژه: سالن زیبایی شکرنیا
معماران: کارگاه معماری ۴
مکان: ایران، تهران، سعادت آباد
تیم طراحی: کسری شفیعی زاده و …
مساحت: ۸۸ مترمربع
سال: ۲۰۱۶
عکس برداری: هامون مقدم
متریال: ویترا، کیل، شل، کناف
بررسی دکوراسیون آرایشگاه زنانه در تهران از زبان معمار
سالن زیبایی شکرنیا، مركزی برای ارائه ی خدمات آرايشی و بهداشتی برای بانوان است. اين سالن در خيابان سعادت آباد واقع شده است. اين واحد قبلا اداری بوده است پس نمی توانسته نیاز های یک سالن زیبایی را براورده کند. كارفرما به دنبال فضايی لوكس و در عين حال الهام بخش با مساحتی ۸۸ متر مربعی برای ارائه ی خدمات بود.
برای هر میز آرایش ، ۲ لامپ هالوژن تعبیه شده ، که نور لازم را برای آرایش و پیرایش مشتریان ، به صورت کاملا تامین می کند .
ایده ی طراحی دکوراسیون آرایشگاه زنانه شکرنیا چه بود ؟
ايده ی اصلی این پروژه ، ايجاد فضاهای مجزا با كاربرد های مختلف بود که در عين يكپارچگی به شکل باکس هايی با دو رنگ مختلف طراحی شوند تا فضاهای كثيف و تميز را از يكديگر جدا کنند. این باکس ها، بسته یا نيمه بسته هستند که هیچ گونه تداخل شنیداری یا بویایی ای برای افراد ايجاد نمی كنند. مشتری در این سالن، فضای اختصاصی مکفی ای در اختیار دارد. می توان از داخل بعضی از این باکس ها رد شد، اما برخی از آنها فقط جزئی از طراحی این سالن هستند.
در طراحی دکوراسیون آرایشگاه زنانه توجه به روابط فضایی از جایگاه والایی برخوردار است . این موضوع در طراحی سالن زیبایی شکرنیا مشهود است .
نورپردازی این پروژه طبق استانداردهای لازم طراحی شده است که به عنوان يكی از عوامل موثر برای دستیابی به حداكثر بازدهی فضای آرايشگاهی است. انتخاب گياهان سانسوریا برای توجه ویژه به مقوله ی تصفيه هوا باعث ایجاد محیطی دوست داشتنی شده است.
یک کانسپت صحیح لازمه موفقیت هر پروژه هوشمندانه ای است . به واقع کانسپت مورد استفاده در طراحی دکوراسیون آرایشگاه زنانه شکرنیا کاملا هوشمندانه و متناسب با شغل آریشگران انتخاب شده است ! نظر شما چیست ؟
تحریریه : خانه طرح | منبع: khanetarh , archdaily













عالی بی نظیر کار شده