طراحی خانه ها و آپارتمان های کوچک با سبک مدرن، سازگاری خوبی دارند . اگر شما هم از آن دسته از افرادی هستید که نقشه خانه دو خوابه و یا به شکل دقیق تر بگوییم، نقشه خانه دو خوابه ۷۰ متری دارید و به دنبال هزینه ای اندک با دکوراسیون مدرن هستید ، این پروژه می تواند ایده جالبی برای طراحی دکوراسیون منزل شما باشد. . همانطور که می دانید چیدمان خانه، تاثیر قابل توجهی بر طراحی داخلی انجام شده دارد. هر گوشه و کناری از فضای داخلی ساختمان می تواند تعیین کننده بهترین مکان برای قرار دادن مبلمان و یا استفاده از رنگ های خاص در آن محیط باشد . خانه ای که در این بخش به آن پرداختیم به صورت L شکل می باشد. این خانه دو اتاق خوابه، چیدمان جالبی داشته و نورگیری مناسبی در قسمتهای مختلف بنا فراهم شده است و از رنگهای تیره که موجب کوچک نشان داده شدن محل می شود، کمتر استفاده شده و جریان و هارمونی جالبی ایجاد شده است.
نقشه خانه دو خوابه ۷۰ متری با دکوراسیون مدرن
پذیرایی به صورت ساده و محیط بازی در نظر گرفته شده است. پذیرایی دارای یک مبل خردلی رنگ و همچنین آباژورهای خاص و چراغهایی می باشد که در دسترس قرار دارند.
با اینکه میزان نور طبیعی وارد شده از پنجره کافی نیست، ولی این مشکل با استفاده از رنگ های سفید بسیار در نزدیکی پنجره ها که باعث انعکاس نور به داخل بنا می شوند، رفع شده است.
فضای باز داخلی حتی با وجود دیوار جدا کننده موقت نیز حفظ شده است. همچنین مجسمه پرندگان ایمز نیز در قفسه کتاب مشخص است، که اینها تنها نماد قرون وسطی در این بنا نمی باشند.
در نقشه خانه دو خوابه و دکوراسیون مدرن این پروژه از رنگ های قوی استفاده شده در نمای داخلی، حس زمینی بودن را ایجاد کرده و آهنگ ملایمی به محیط بخشیده است.
گیاهان همیشه در دکوراسیون داخلی با طراحی عالی وجود داشته اند، و اگر در قفسه های خاص اینچنینی قرار داده شوند، توجه بسیاری را به خود جلب می کنند.
نورپردازی داخلی، بسیار ساده و در عین حال موثر می باشد. استفاده از لوستر برای غذاخوری، جالب و عملی است، در حالیکه لامپ ها در سقف کاذب، درخشش خاصی به محیط می دهد.
در اتاق خواب برای سر تخت ، قفسه ها و کمدها، از چوب طبیعی زیبایی استفاده شده، و در عین حال استفاده از رنگ های سرد، آهنگ ملایم و آرامی به محیط بخشیده است.
در سرویسهای بهداشتی از سنگ های سفید استفاده شده و استفاده از سبک دکوراسیون مدرن کاملا مشهود است.
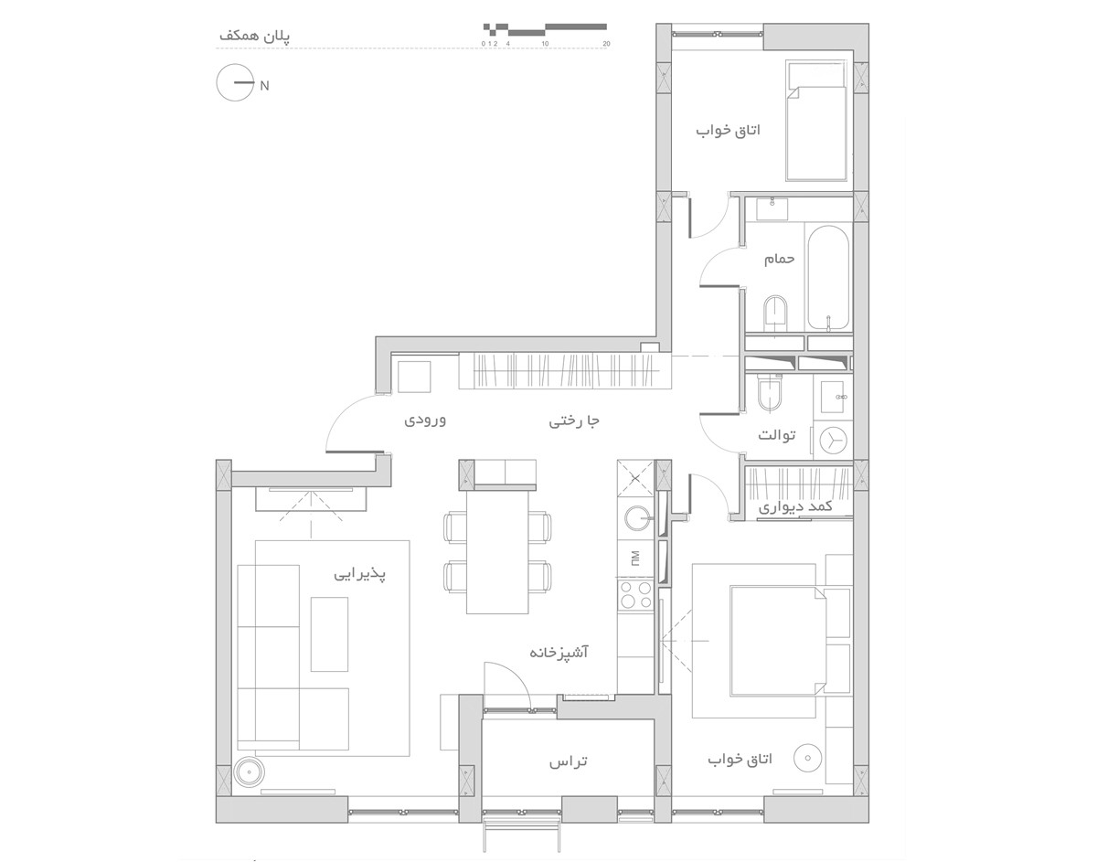
در تصویر بالا نقشه خانه دو خوابه 70 متری درج شده است . همانطور که در تصویر نیز مشاهده می کنید ، فضاهای خصوصی و عمومی به شکل هوشمندانه ای از یک دیگر جدا شده اند تا علاوه بر یک دکوراسیون مدرن ، شاهد توجه به فضاهای عمومی و خصوصی نیز باشیم . نظر شما در خصوص نقشه خانه دو خوابه ۷۰ متری با دکوراسیون مدرن چیست؟ آیا این سبک از دکوراسیون مورد سلیقه شماست ؟
تحریریه : خانه طرح | منبع: khanetarh















سلام وقت بخیر فایل اتوکد این بنا توی سایت قرار داره ؟
درود بر شما فایل ها قابل خرید هستند
سلام فایل اتوکد این بنا توی سایت قرار داره ؟
سلام یه خونه کلنگی دارم می خوام بسازمش سه ضلعی هستاش لطفاً در مورد نقشه اش راهنمایم کنید
سلام از طریق فرم مشاوره اقدام بفرمایید
باسلام زمینم ۱۰،۱۷متره میخوام دوخوابه باشه پزیرایی بزرگ باشه لطفا راهنماییم کنید
سلام لطفا فرم مشاوره
با درود فراوان ایکاش نمای خارجی این طرح فوق العاده زیبا هم در دسترس بود اکثر طرح هایی که تو سایت دارید زیبا و کاربردی هستند از این بابت سپاسگزارم
سلام ممنون از سایت خوب ومفید شما یک زمین دارام می خواهد به متراژ ۵۰ یک واحد کوچک داخلش بزنم آیا می توانید کمک و راهنماییم کنید
سلام و عرض ارادت از طریق فرم مشاوره اقدام فرمایید.
باسلام و خسته نباشید زمینی ب متراژ ۱۴۰متر دارم درابعاد تقریبی ۱۳ متر طول و ۱۰متر عرض میخام ساختمانی ازش در بیارم ک دوطبقه و راه ورودی هرکدام جدا از هم باشه دوخوابه باشه و یچیز خوشگل و امروزی و ردیف در بیاد…
امکانش هس کمک کنین..ممنون
درود ، جهت مشاوره و طراحی از طریق فرم درخواست خدمات اقدام فرمایید.
سلام کارهاتون خیلی عالی و شیک هستند ولی ای کاش در نقشه های که بارگزاری میکنید ابعاد و متراژ به صورت دقیق لحاظ بشن
آخه در برخی نقشه مثلا ۸۵متری ابعاد رو جمع بزنید کمتر از ۸۵در میاد.
سلام بله ضخامت دیوار و لابی ورودی درج نشده
سلام یه زمین طبقه همکف دارم به مساحت ۷۰ متر دوخوابه نقشه خوب دارید زمین مستطیل شکل هست
سلام لازمه پلان بر اساس خواسته های شما طراحی بشه
سلام یه زمین طبقه همکف دارم ۷۰متر دو خوابه میشه نقشه کشید ؟؟؟ زمین مستطیل هست .
سلام ، بستگی به اولویت شما داره، اگر اولویت اول شما نشیمن بزرگ هست،خیر ، اما اگر می تونید با نشیمن کوچک تر کنار بیاید بله
سلام وقت بخیر زمین ب عرض ۷و طول ۱۰ دارم میخام دوبلکس بسازم آیا میشه سالن بره بالا اتاقا پایین باشه ؟ چیزی درمیاد ازش
سلام بله امکانش هست.
سلام ی خونه داریم طبقه بالا ۸ در ۹ اگه میشه یک نقشه خوب نیاز دارم و یک اتاق داشته باشه
سلام از طریق فرم درخواست خدمات اقدام نمایید.
سلام خسته نباشید.یه زمین دارم به طول ۱۶متر عرض ۶ونیم میخواستم یه نقشه قشنگ به روز ازش دربیاریت برام یک خواب هم دربیات مشکلی نیست متشکرم
وقت بخیر جهت طراحی از طریق فرم درخواست خدمات اقدام بفرمایید در خدمت شما هستیم
سلام ضمن خسته نباشید . بنده یه پلان خوب برای ساخت یه خونه دو طبقه در زمین ۱۰۰متری که حداقل ۷۰ متر زیربنا داشته باشه ۳۰ مترحیاط و هر طبقه دو خوابه باشه ، ابعادش هم ۱۱ متر عرض و ۹ متر هم طولش هست ، جهت اطلاع هم قواره دوم در کوچه ۵ متری! . لطفا در تهیه این نقشه کمکم میکنید?
سلاک و عرض ادب ، جهت مشاوره و طراحی از طریق فرم درخواست خدمات اقدام فرمایید.
سلام میخواستم توباغ یه ویلا۷۰متری درست کنم میخواستم نقشه داخلش روبرام بکشید
با سلام لطفا فرم درخواست خدمات رو ارسال بفرمایید.
سلام زیباست
میخاسم برای ساخت ی خونه نود متری دوبلکس کمکم کنید
سلام برای مشاوره از طریق فرم درخواست خدمات اقدام نمایید.
سلام می خوام یه خونه ۷۰متری به کمک چندنفربرای یه بنده خدایی که تحت پوشش کمیته امام است بسازیم به یک نقشه مهندسی نیاز داریم اگربراتون مقدوره برامون طراحی کنید.باتشکر
سلام ی زمین ۱۱۲متری دارم می خوام دو طبقه جدا دوبلکس با دو خواب بسازم آیا میشه با این متراژ ابعادشم ۸در ۱۴هستش
بستگی به خواسته های شما از پلان ، همچنین شمالی یا جنوبی بودن زمین و میزان درصد تراکم ساخت داره
سلام یه خونه ۷۴متری .دوخابه ودوبلکس دارم لطفاً راهنماییم کنید یه طرح جزاب وزیبا برای دکوراسیونش بدید ممنون
سلام از طریق فرم درخواست خدمات اقدام بفرمایید در خدمتتون هستیم.
سلام وقت بخیر من یه طرح خوب و مفید برای ساخت خونه ۷۰ متری دوبلکس میخواستم میشه لطفا راهنماییم کنین ممنون میشم
سلام لطفا از طریق فرم درخواست خدمات اقدام فرمایید.
سلام یه ۷۶متری دارم از فضای داخلش راضی نیستم و شروع کردم به تغییراتش ولی برای بهتر شدنش کمک میخام میشه لطفا کمکم کنید
با سلام و خسته نباشید یه قطعه زمین به متراژ ۲۶۸/۱۸ متر با ابعاد ۱۰/۷۸ در ۲۴/۸۶ دارم که ۱۰/۷۸ متر ی ان بر خیابان می باشد انشاالله قصد اپارتمان سازی دارم در هر طبقه دو واحد یا و در بعضی طبقات سه واحد بزنم ممنون میشم اگه نمونه نقشه طراحی شده در این گونه ابعاد را واسم وات کنید
سلام مهندس ۳۹۰متر بنا در ۴ طبقه هر طبقه ۴ واحد ۷۱-۹۰-۹۹و۱۰۵ متری بدون پرتی برام طراحی کنید هزینش چقدره میشه
درود بر شما لطفا توضیحات رو جهت بررسی به شماره ۰۹۱۰۰۵۵۶۰۰۰ پیامک بفرمایید.
سلام بنده در حال ساخت یک پروژه تجاری اداری هستم سر دونبش ب مساحت ۲۰۰ متر زمین ب ابعاد ۱۰×۲۰ ک اسکلت و سقفها اجرا شدن زیر زمین و همکف و بااای همکف به صورت سالن تجاری یک نواخت هستند و طیقات بالارو میخام هر طبقه دو واحد ۱۰۰ متری در بیارین (اداری مطب یا دفتر کار) میخام بزنم نقشه داخلی زیبا و دلباز میخام با تشکر
سلام لطفا فرم درخواست خدمات را جهت طراحی پر و ارسال فرمایید.
زمینم ۵.۵ در۱۲ طبقه دوم میشه نقشه برام بفرستین
جهت مشاوره از طریق فرم درخواست خدمات اقدام فرمایید تا همکاران بررسی های لازم را انجام دهند.
سلام ی زمین داریم ۷در۱۲براش ی نقشه خوب میخام من ترجیحم دوخابه ولی همسرم تک خاب میشه راهنمایی کنین؟؟ فرم درخواست چیه ک باید پر کنم
سلام پیشنهاد ما یک خوابه هست. فرم درخواست خدمات در بالای سایت بخش سبز رنگ هست. پر کنید ، ارسال فرم کمتر از ۳۰ ثانیه زمان می بره که جهت مشاوره برای وقت مشاوره هست.
سلام خسته نباشید ی خونه داریم میخوایم بکوبیم از نو بسازیم عرض زمین ۶ متره طولش ۱۹ میخوایم دو خوابه باشه ی حیاط بیفته و ی انباری تو حیاط حیاطم فقط ب اندازه ای باشه ک ی ماشین توش جا بشه بی زحمت واسه نقشش راهنمایی میکنید
سلام فرم درخواست خدمات رو ارسال بفرمایید تا مشاوره انجام بشه.