مشخصات پروژه
نام : نقشه ساختمان مسکونی ۲۰۰ متری
کارفرما : جناب آقای رادجو
مدیر طرح: مهندس بهنام خیری
ترسیم: مهندس فاطمه صادقی
مدت زمان پروژه : ۱۵ روز کاری
توضیحات پروژه
نقشه ساختمان مسکونی دارای اصول و قواعدی است که اگر در جای خود به آنها توجه نشود در نهایت با ساختمانی مواجه می شویم که آرامش را از کاربرانش صلب می کند. یکی از این اصول و قواعد توجه به فضاهای عمومی و خصوصی در طراحی نقشه ساختمان مسکونی است. در طراحی نقشه ساختمان مسکونی جناب آقای رادجو به تمام مسائل مهم و قابل تامل در این زمینه توجه شد. در ادامه به توضیحات بیشتری در خصوص طراحی پلان طبقات خواهیم پرداخت.
پلان طبقه همکف :
در طبقه همکف ، فضاهایی از جمله پارکینگ جهت پارک همزمان ۴ خودرو ، لابی انتظار ، انباری و سالن سرگرمی طراحی شد. دسترسی سواره و پیاده از یک دیگر تفکیک شده اند تا دسترسی به فضاها بدون خطر و استرس انجام شود. راه پله برای دسترسی بهتر در بخش مرکزی پلان طراحی شد و دسترسی فضای سواره و پیاده به آن آسان است.
پلان طبقه اول:
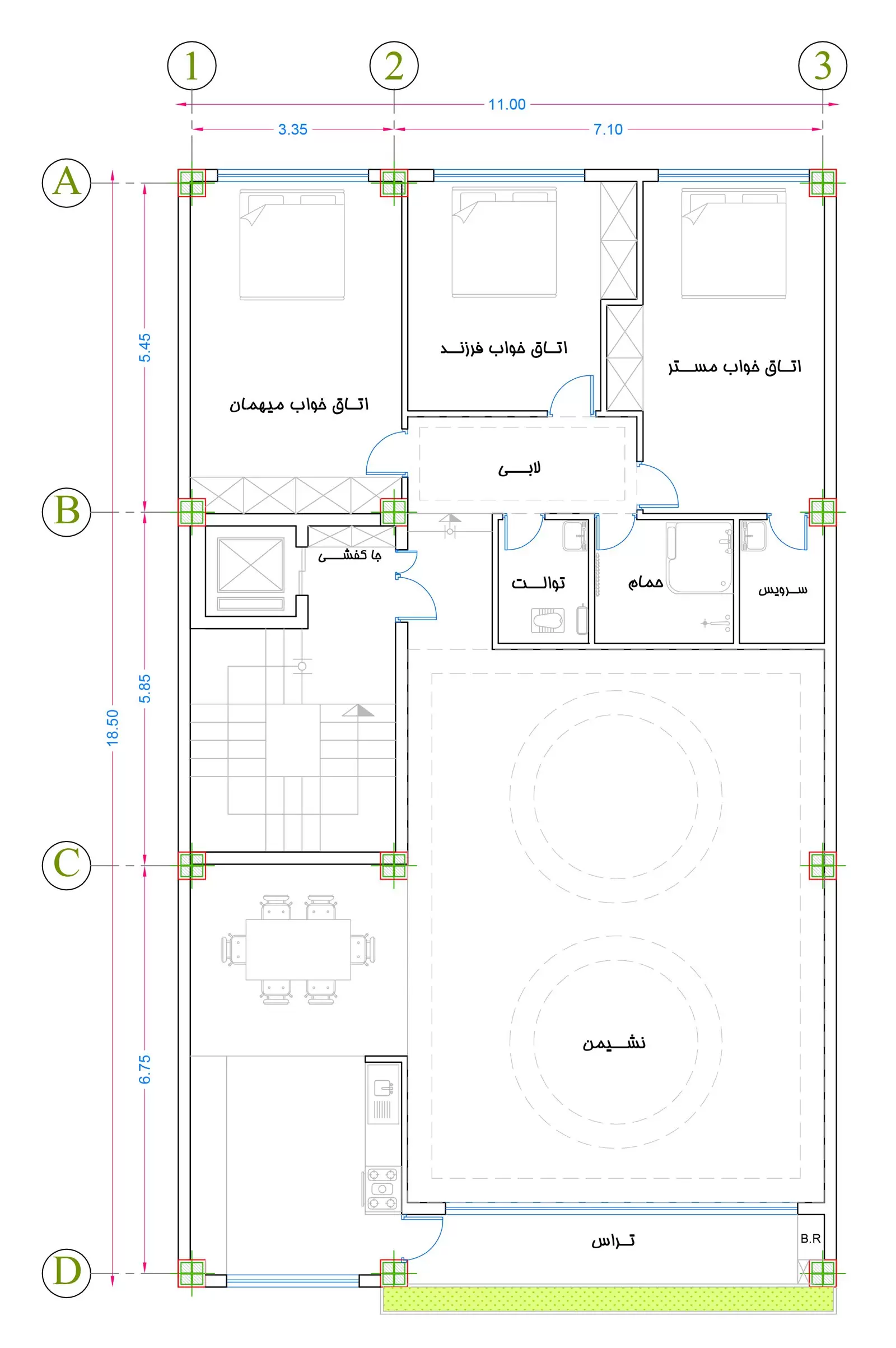
نقشه ساختمان مسکونی ۲۰۰ متری فوق به صورت ۳ خوابه طراحی شده است و دارای فضاهایی از جمله اتاق خواب مستر ، اتاق خواب میهمان ،آشپزخانه ، لابی ورودی، سالن پذیرایی ، ناهار خوری ، اتاق فرزند ، توالت ، حمام و سرویس بهداشتی می باشد. در رو به روی فضای نشیمن تراس سرتاسری قرار دارد که می توان با قرار دادن گل های زیبا جلوه خاصی به سالن پذیرایی بخشید.
پلان طبقه دوم:
پلان طبقه دوم مشابه طبقه اول است با این تفاوت که فضای توالت ، حمام و سوریس بهداشتی کوچکتر و فضای تراس بزرگتر شدند . همچنین فضای ناهارخوری حذف و جای خود را به آشپزخانه داد. در طبقه دوم شاهد فضاهایی از جمله اتاق خواب مستر ، اتاق خواب میهمان ،آشپزخانه ، سالن پذیرایی ، اتاق فرزند ، لابی ورودی ، توالت ، حمام و سرویس بهداشتی هستیم. وجود یک تراس با گل ها و سرسبزی های فراوان می تواند سالن پذیرایی را جذاب تر کند.
پلان طبقه سوم:
در طبقه سوم تراس جای خود را به روف گاردن می دهد. زمانی که شما سالن پذیرایی نشسته اید می توانید روف گاردن و فضای سبز را به نظاره بنشینید. در طبقه سوم شاهد فضاهایی از جمله لابی ورودی ، اتاق خواب مستر ، اتاق خواب میهمان ،آشپزخانه تمیز ، آشپزخانه کثیف ، سالن پذیرایی ، اتاق فرزند ، توالت ، حمام و سرویس بهداشتی هستیم. درپایان می توان گفت نقشه ساختمان مسکونی 200 متری فوق دارای یک طراحی منسجم و به دور از هر گونه فضای پرتی است و می تواند نظر بسیاری از کارفرمایان را به خودش جلب نماید. البته باز هم تاکید می کنیم طراحی پلان بایستی مطابق با نیاز های شما طراحی شود.











دیدگاه خود را بنویسید