مشخصات پروژه
نام پروژه : نقشه ساختمان دوبلکس
کارفرما : جناب آقای خوشنویس
مدیر طرح: مهندس بهنام خیری
ترسیم: مهندس سعید نیکنام
مدت زمان پروژه : ۸ روز کاری
توضیحات پروژه
نقشه ساختمان دوبلکس آقای خوشنویس در طبقه همکف و اول با متراژ ۲۷۰ متر مربع طراحی شد. با صحبت هایی که با کارفرما صورت گرفت برای این خانه دوبلکس نیاز به پارکینگ با جای پارک ۲ خودرو به صورت سر بسته بود. این خانه دارای اتاق های متنوعی است که به درخواست کارفرما طراحی به سبک مدرن طراحی شدند . اسکلت مورد استفاده در طراحی این ساختمان از نوع فلزی است که سرعت اجرای کار را بالا می برد. در ادامه به توضیحات بیشتری در خصوص نقشه ساختمان دوبلکس خواهیم پرداخت.
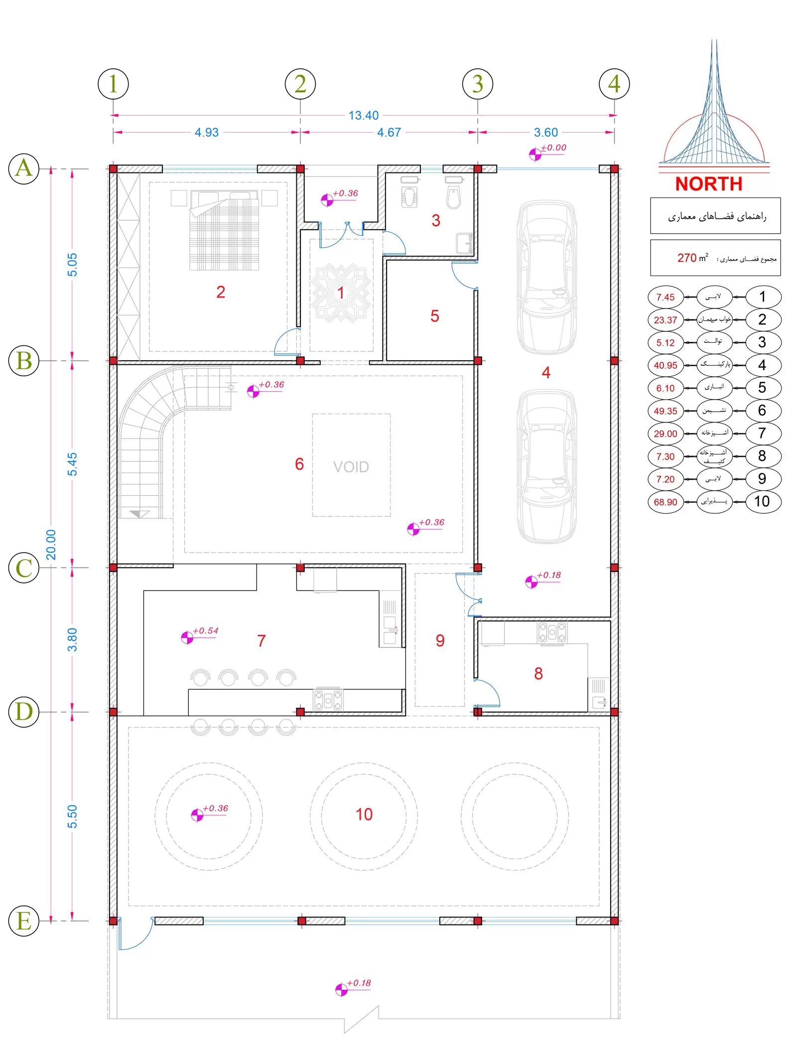
پلان طبقه همکف :
در طبقه همکف فضاهای پارکینگ ، انباری ، لابی ورودی ، نشیمن ، پذیرایی ، آشپزخانه کثیف ، آشپزخانه تمیز ، اتاق خواب میهمان و سرویس توالت طراحی شد. در فضای نشیمن ، راه پله دوبلکس قرار قرار دارد که شما را به طبقه اول منتقل می کند. همچنین آشپزخانه به صورت جزیره طراحی شد تا دسترسی به سال پذیرایی و نشیمن آسانتر باشد.
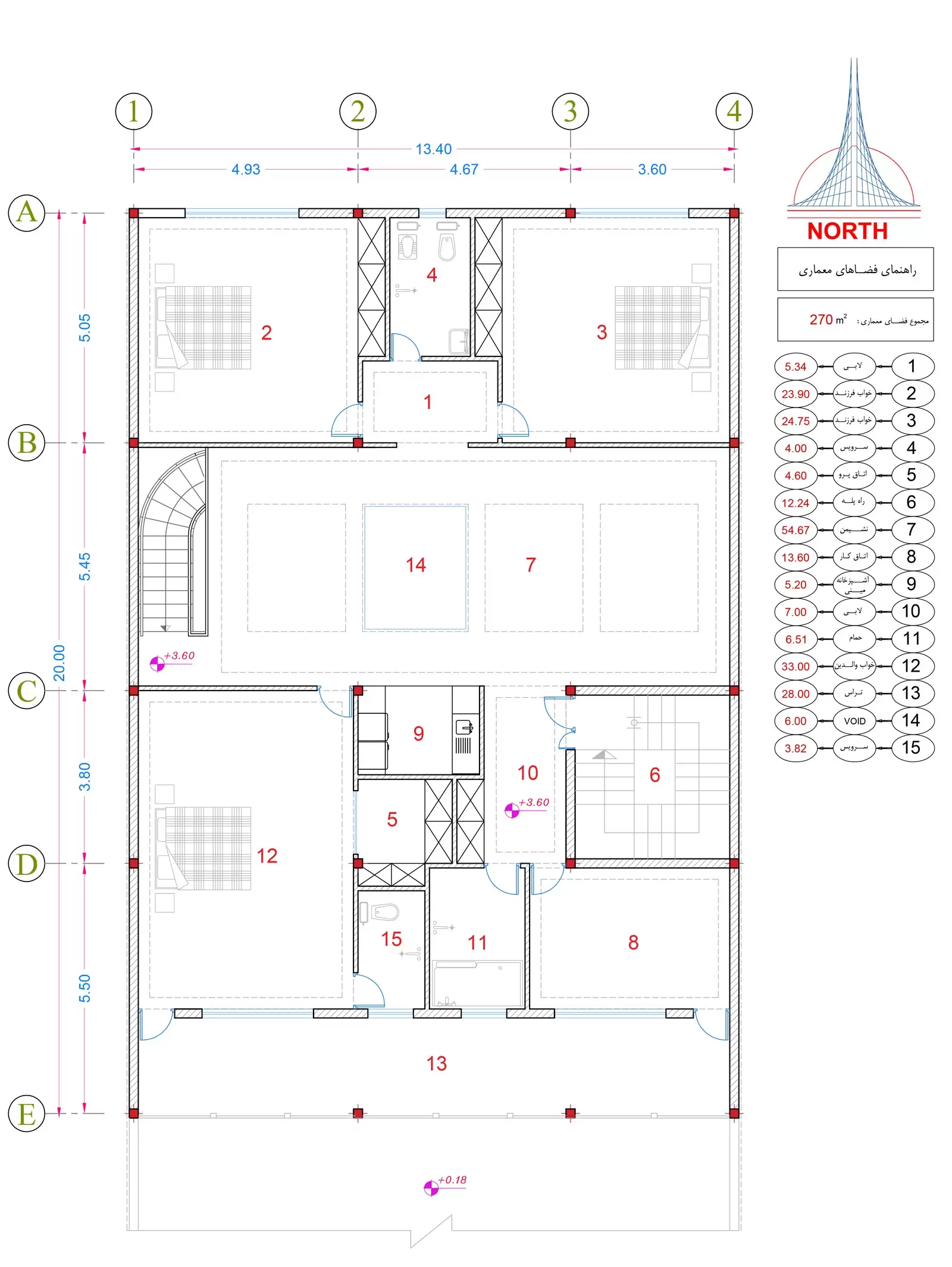
پلان طبقه اول:
و اما در طبقه اول اتاق خواب فرزندان در جوار یک دیگر طراحی شدند و یک سریس بهداشتی نیز برای این دو اتاق خواب در نظر گرفته شد. اتاق کار در نزدیکترین نقطه به راه پله طراحی شد و برای اتاق خواب والدین سنگ تمام گذاشتیم. اتاق خواب والدین مجهز به سرویس بهداشتی و اتاق پرو است و به آشپزخانه مینی بسیار نزدیک است. همچنین این اتاق خواب به تراس سرتاسری منتهی می شود که می تواند در تابستان فضای دلنشینی را ایجاد کند. در مجموع نقشه ساختمان دوبلکس آقای خوشنویس یکی دیگر از پروژه های موفق در زمینه خانه های دوبلکس است که توسط مهندس خیری به مرحله نهایی رسید.









دیدگاه خود را بنویسید