مشخصات پروژه
نام پروژه : نقشه ساختمان دوبلکس
کارفرما : جناب آقای مرادی
مدیر طرح: مهندس بهنام خیری
ترسیم: مهندس سعید نیکنام
مدت زمان پروژه : ۷ روز کاری
توضیحات پروژه
نقشه خانه دوبلکس آقای مرادی در دو طبقه (طبقه همکف + طبقه اول) با تراکم ۶۰ درصد و منطبق با خواسته ها و نیازهای کارفرمای پروژه طراحی شد. اسکلت مورد استفاده در طراحی نقشه خانه دوبلکس از نوع بتنی است و در مجموع ۱۴ ستون مساحتی بالغ بر ۲۲۷ متر مربع را پوشش می دهند. این ساختمان به صورت ۴ خوابه طراحی شده و امکان پارک ۲ خودرو به صورت سرپوشیده و چندین خودرو به صورت سرباز را داراست. در ادامه به توضیحات بیشتری در خصوص طراحی طبقه همکف و اول خواهیم پرداخت.
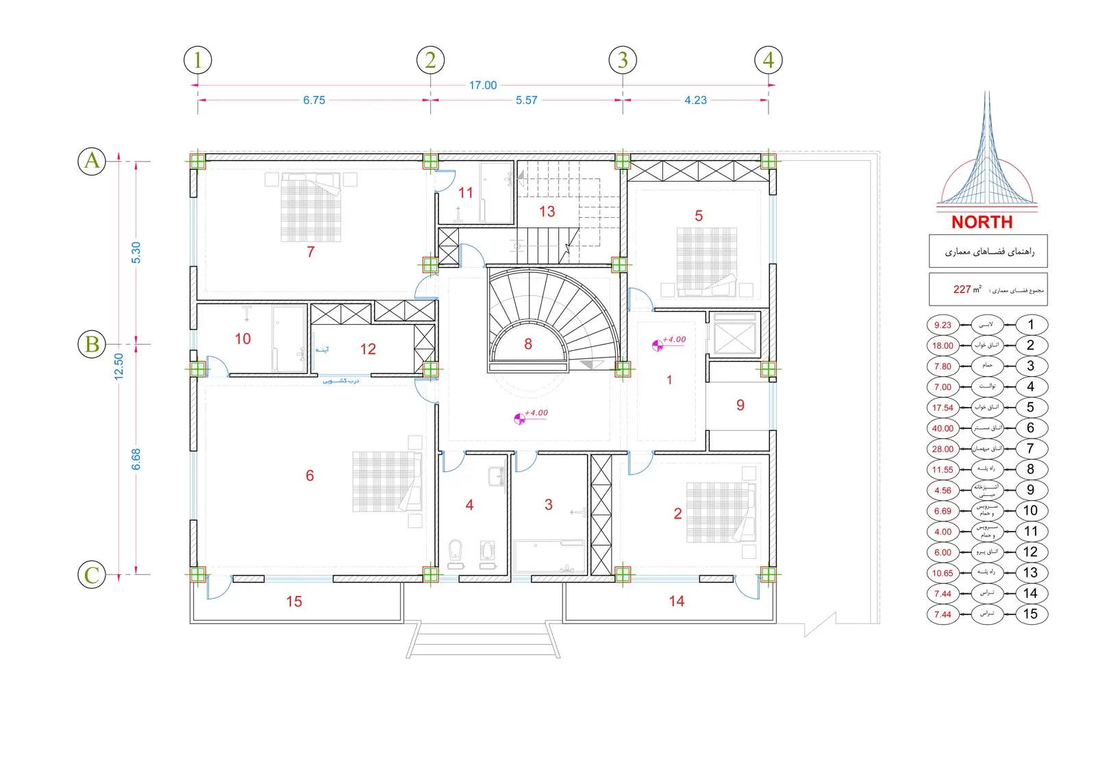
پلان طبقه اول
طبقه همکف ۲۲۷ متر مربع مساحت دارد و شامل فضاهای لابی ، آشپزخانه تمیز ، آشپزخانه کثیف ،حمام ، توالت ، بالابر، پارکینگ ، انباری ، راه پله ، اتاق ورزش و پذیرایی می باشد . برای رسیدن به طبقه اول می توان از طریق راه پله گردی که در مرکز نشیمن تعبیه شده استفاده نمود. البته اگر توان استفاده از راه پله را نداشته باشید یک بالابر نیز تعبیه شده که می تواند شما را به طبقه اول منتقل کند. در تصویر زیر نقشه خانه دوبلکس (پلان طبقه همکف) را مشاهده می کنید.
پلان طبقه دوم
طبقه اول ۲۲۷ متر مربع بدون احتساب تراس ها مساحت دارد. اتاق خواب مستر ، اتاق خواب میهمان ، اتاق کودک ، اتاق نوجوان ، سرویس بهداشتی ، سرویس حمام و توالت ، اتاق پرو ، راه پله ، اتاق بار و تراس ها فضاهایی هستند که در پلان طبقه اول نقشه خانه دوبلکس طراحی شده اند. همچنین برای رسیدن به خرپشته یک راه پله به صورت جداگانه طراحی شده تا به دین صورت از هدر رفت انرژی به فضای خرپشته جلوگیری شود. اتاق خواب میهمان دارای یک سرویس بهداشتی مخصوص به خود است اما در اتاق خواب مستر نه تنها از سرویس بهداشتی و حمام بهره می گیرد بلکه دارای یک اتاق پرو ویژه نیز هست. در تصویر زیر نقشه خانه دوبلکس (پلان طبقه اول) را مشاهده می کنید.









دیدگاه خود را بنویسید